• Atelier G+S
    • Inhaber
    • Team
    • Credo
    • Projektablauf
    • Offene Stellen
    • Impressum
    • Auswahl an Referenzarbeiten
  • Wettbewerbe
    • Alle
    • Öffentliche Bauten
    • Gewerbe / Industrie
  • Projekte
    • Öffentliche Bauten
    • Historische Bauten
    • Private Bauten
    • Gewerbe / Industrie
    • Alle
  • Entwicklungsprojekte
  • Kontakt
Neubau Gesundheitszentren – Mali
Neubau Gesundheitszentren – Mali

Neubau Gesundheitszentren
Region Timbuktu und Gao
Mali

Auftraggeber:
IKRK (Internationales Komitee des Roten Kreuzes)

Baujahr: 1998-2000
Auftragsdauer: 1997-2000


Historischer Hintergrund
Kulturelle Unterschiede zwischen den Tuareg, die in der Sahelzone nomadisieren, und der schwarzafrikanischen Bevölkerung Malis, sowie Landstreitigkeiten und nicht eingehaltene Zusagen der Regierung führten zu zwei grossen Rebellionen (1962-1964 und 1990) und zu bewaffneten Kämpfen.

Auftrag

Das IKRK, das seit Jahren in Mali tätig ist, gab uns Ende 1997 den Auftrag, eine Evaluation zum Bau von Gesundheitszentren in Nordmali durchzuführen. Basierend auf dieser Evaluation wurden von 1998-2000 insgesamt 13 neue Gesundheitszentren gebaut und sechs Bestehende renoviert. Die Bauarbeiten wurden in der Region Timbuktu und Gao ausgeführt. Lokale Arbeiter erstellten sämtliche Arbeiten.

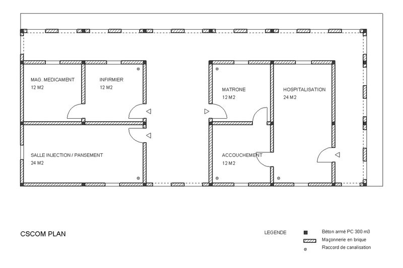
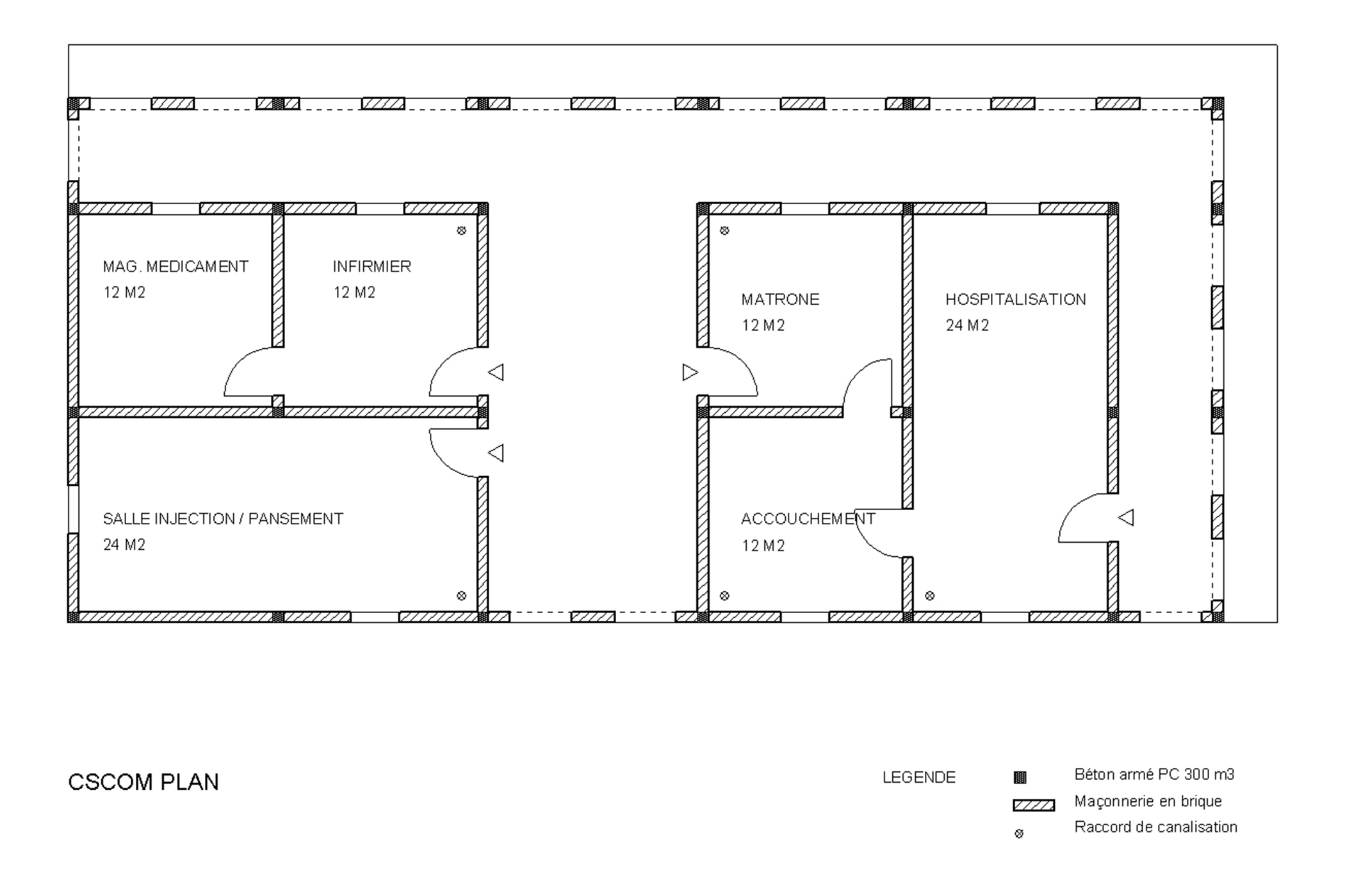
Konzept
Die Grundidee basiert auf einem modularen System. Ein Grundmodul misst ca. 10x10m und kann um ein halbes oder ganzes Modul den Bedürfnissen der Gemeinden angepasst werden. Die grosszügige Fläche zwischen den Modulen und dem Laubengang dient als Schattenspender und Warteraum.

Konstruktion
Die Gebäude sind, wegen der extremen klimatischen Verhältnisse (Hitze bis 50°C und Sandstürme), in massiver Bauweise ausgeführt. Zum Bau der Zentren wurden ausschliesslich lokale, traditionelle Materialien verwendet. Dies sind Lehm, Holz, Zement und gebrannte Steine.